Diese hochwertige, barrierearme Erdgeschosswohnung befindet sich in der Fertigstellung eines neuerbauten Zweifamilienhauses der renommierten Fertigbau-Firma "FingerHaus" und besticht durch seine zukunftsweisende Bauweise in fast Passivhaus-Qualität. Das bedeutet: minimaler Heizenergiebedarf, exzellente Wärmedämmung und eine optimierte Gebäudehülle – für geringe Nebenkosten und ein besonders behagliches Raumklima in allen Jahreszeiten.
Große, dreifachverglaste Fensterflächen sorgen für viel Tageslicht und ein offenes Wohngefühl. Die Wohnung ist mit einer kontrollierten Wohnraumlüftung (KWL) mit bodenbündigen Luftauslässen ausgestattet, die für stetig frische und wohltemperierte Luft sorgt. Durch die dezent im Boden integrierten Auslässe bleibt die ebene Bodenfläche erhalten, während Energieeffizienz und Wohnkomfort auf höchstem Niveau gewährleistet sind. So vereint das Haus ökologische Bauweise mit modernem Wohnkomfort und bietet ein Wohnambiente, das nachhaltig und zukunftssicher ist.
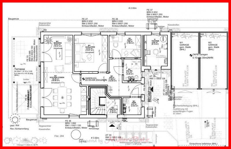
Die Erdgeschosswohnung ist komfortabel und ohne Stufen über eine eigene Haustür erreichbar. Im Eingangsbereich befindet sich unmittelbar auf der linken Seite der Hausanschluss-/Abstellraum, der ausreichend Platz für Ihre Waschmaschine, Trockner, den Sicherungskasten und die kontrollierte Wohnraumlüftung bietet. Vom Flur gelangen Sie geradeaus in das großzügige, lichtdurchflutete Wohn- und Esszimmer mit offenem Wohnküchenbereich. Zwei Terrassentüren eröffnen den Zugang zur überdachten Terrasse und in den kleinen Garten – ideal für entspannte Stunden im Freien.
Auf der rechten Seite des Flurs liegen ein großzügiges Schlafzimmer mit doppelflügigen Fenstern und ein weiteres Zimmer, das flexibel als Kinder-, Gäste- oder Arbeitszimmer genutzt werden kann. Ein modern ausgestattetes Badezimmer mit bodentiefer Dusche rundet die Wohnung ab.
Diese attraktive Wohnung kombiniert offenes Wohnen, durchdachte Raumaufteilung und moderne Technik – perfekt für Paare oder alleinstehende Personen, die Wert auf komfortables, energieeffizientes und hochwertiges Wohnen legen.
Gerne stellen wir Ihnen diese attraktive Neubauwohnung bei einer Besichtigung näher vor. Wir freuen uns auf Ihre Anfrage.
Ausstattungsdetails:
- Moderne Heiz- und Lüftungstechnik: Die Wohnung verfügt über eine Fußbodenheizung in allen Wohnräumen und eine kontrollierte Wohnraumlüftung (KWL) mit bodenbündigen Luftauslässen, die für stets frische, gefilterte Luft mit Wärmerückgewinnung sorgt und das Raumklima auf einem hohen Komfortniveau hält.
Für höchsten Wohnkomfort ist die Wohnung vollklimatisiert und mit separaten Klimasplit-Anlagen in allen Räumen ausgestattet.
- Hervorragende Energieeffizienz: Das Haus entspricht nahezu den Kriterien eines Passivhauses, mit exzellenter Wärmedämmung, optimierter Gebäudehülle und dreifachverglasten Fenstern, die sowohl Heizkosten minimieren als auch das Wohnklima verbessern. Die Fenster sind mit Einbruchschutz der Widerstandsklasse RC2N ausgestattet und bieten ein erhöhtes Maß an Sicherheit.
- Küche: Die Wohnung wird mit einer modernen Einbauküche ausgestattet, die zeitgemäßen Komfort und Funktionalität bietet. Der Preis für die Küche beträgt 165,- €/Monat. (Siehe Aufstellung bei Sonstigen Angaben).
- Badezimmer: Das Badezimmer überzeugt durch ein elegantes, modernes Design und eine hochwertige Ausstattung. Die großzügige, bodengleiche Dusche schafft ein offenes Raumgefühl und hohen Komfort. Edle weiße Sanitärobjekte, ein formschöner Waschtisch sowie stilvolle Armaturen in Chrom unterstreichen den exklusiven Charakter. Das WC ist spülrandlos ausgeführt und mit komfortabler Absenkautomatik ausgestattet – für hohe Hygiene und leisen Bedienkomfort. Die hochwertige Regendusche mit weichem „PowderRain“ und zusätzlicher Handbrause sorgt für ein luxuriöses Duscherlebnis.
- Terrasse / Außenbereich: Die Wohnung verfügt über eine überdachte Terrasse, die sich vom Wohn-/Essbereich aus betreten lässt, sowie ein Stück Garten, was zusätzlichen Wohnkomfort im Freien bietet.
- Digitale Infrastruktur: Die Wohnung verfügt über einen Glasfaseranschluss, sodass schnelles Internet für Homeoffice, Streaming oder Gaming garantiert ist. In sämtlichen Räumen sind LAN-Anschlüsse vorhanden, im Wohnbereich sogar doppelt ausgeführt.
- Parkmöglichkeiten: Als Mieter stehen Ihnen sowohl eine Garage, welche über ein elektrisches Sektionaltor verfügt und mit einer 11 KW-Wallbox ausgestattet ist, als auch der Stellplatz vor der Garage zur Verfügung. Die Garage wird mit 65,00 €/Monat berechnet. (Siehe Aufstellung bei Sonstigen Angaben)
- Ergänzt wird das Wohnangebot durch die 15 m² große, überdachte Terrasse sowie einen Garten mit ca. 150 m² Fläche, der zusätzlichen Wohn- und Erholungsraum im Freien bietet.
Die angebotene Wohnung befindet sich in Wegberg-Harbeck (Innenring), einem idyllischen und gepflegten Ortsteil der Stadt Wegberg im Kreis Heinsberg. Die Lage vereint auf gelungene Weise naturnahes Wohnen, ein ruhiges Wohnumfeld und eine sehr gute regionale Erreichbarkeit.
Wegberg-Harbeck ist von viel Grün und einer angenehmen, gemeinschaftlichen Atmosphäre geprägt. Hier wohnen Sie in ruhiger Umgebung, fernab von Hektik und Verkehr, ohne auf die Vorzüge einer gut ausgebauten Infrastruktur verzichten zu müssen. Die Innenstadt von Wegberg ist in wenigen Minuten erreichbar und bietet sämtliche Einrichtungen des täglichen Bedarfs, darunter Einkaufsmöglichkeiten, Schulen, Kindergärten, medizinische Versorgung sowie gastronomische Angebote.
Die verkehrstechnische Anbindung ist optimal: Über die nahegelegenen Bundesstraßen und Autobahnanschlüsse (A52 / A46) sind die Städte Mönchengladbach, Düsseldorf und Aachen komfortabel erreichbar. Der Bahnhof Wegberg gewährleistet zudem eine regelmäßige Anbindung an den regionalen Schienenverkehr.
Ein besonderes Qualitätsmerkmal dieser Lage ist die unmittelbare Nähe zur Natur. Der angrenzende Naturpark Maas-Schwalm-Nette sowie zahlreiche Rad- und Wanderwege laden zu Freizeitaktivitäten und Erholung im Grünen ein. Diese Kombination aus hoher Wohnqualität und naturnahem Umfeld macht Harbeck zu einem gefragten Wohnstandort.
Insgesamt überzeugt die Lage durch eine harmonische Verbindung von Ruhe, Natur und urbaner Erreichbarkeit – ideal für Mieter mit Anspruch an Lebensqualität, Komfort und Wohnwert.
Schauen Sie sich bitte vorab die 360° Besichtigung genau an, ob die Wohnung für Sie in Frage kommt. Hier können Sie sich einen ersten Eindruck verschaffen.
Nachfolgend der Link zum virtuellen Rundgang:
https://tour.ogulo.com/xfAo
Als Mieter wird ein Paar oder eine alleinstehende Person mit einem geregelten Gehalt/Einkommen gesucht!
Bitte haben Sie Verständnis dafür, dass wir im Laufe der Mietvertrags-Anbahnung einige Daten z.B. eine freiwillige Selbstauskunft/Schufa-Auskunft, Gehalts-Einkommensnachweise von Ihnen benötige.
Die Wohnung ist ab dem 01. April 2026 bezugsbereit.
Die Flächen setzten sich wie folgt zusammen:
78 m² Wohnfläche setzen sich zusammen aus:
70,5 m² Wohnen + 15 m² überdachte Terrasse davon werden 7,5 m² als Wohnfläche angerechnet
ca.150 m² Garten zur alleinigen Nutzung.
Die Mietkosten setzen sich wie folgt zusammen:
= 1.190, - € Kaltmiete : 78 m² Wohnfläche = 15,26 €/m²
+ 165, - € hochwertige Einbauküche
+ 65, - € Garage und Stellplatz
= 1.420 ,- € Mietkosten inkl. Einbauküche und Garage
+ 249, - € Nebenkosten inkl. 42, - € Heizkosten.
= 1.669, - € Warmmiete
Die Miet-Kaution beträgt 4.065, - €.
Bei weiteren Fragen stehen wir Ihnen gerne zur Verfügung.
Ihre Ansprechpartnerin ist:
Sarah Wilms
Telefon: 02434-9933004
Kaltmiete
1.190 €
Nebenkosten
249,24 €
Warmmiete
1.504,24 €
Heizkosten
42 €
Währung
€
Kaution
4.065 €
Baujahr
2026
Zustand
Erstbezug
Energieausweis
Bedarfsausweis
Energieausweis gültig bis
08.01.2036
Endenergiebedarf
9,7 kWh/(m²a)
Heizungsbaujahr lt. Energieausweis
2026
wesentlicher Energieträger
Luft/Wasser Wärmepumpe
Details zur Immobilie
Energieausweisdaten
Baujahr
2026
Zustand
Erstbezug
Energieausweis
Bedarfsausweis
Energieausweis gültig bis
08.01.2036
Endenergiebedarf
9,7 kWh/(m²a)
Heizungsbaujahr lt. Energieausweis
2026
wesentlicher Energieträger
Luft/Wasser Wärmepumpe
Kaltmiete
1.190 €
Nebenkosten
249,24 €
Warmmiete
1.504,24 €
Heizkosten
42 €
Währung
€
Kaution
4.065 €
Sonstige Angaben zur ImmobilieDiese hochwertige, barrierearme Erdgeschosswohnung befindet sich in der Fertigstellung eines neuerbauten Zweifamilienhauses der renommierten Fertigbau-Firma "FingerHaus" und besticht durch seine zukunftsweisende Bauweise in fast Passivhaus-Qualität. Das bedeutet: minimaler Heizenergiebedarf, exzellente Wärmedämmung und eine optimierte Gebäudehülle – für geringe Nebenkosten und ein besonders behagliches Raumklima in allen Jahreszeiten.
Große, dreifachverglaste Fensterflächen sorgen für viel Tageslicht und ein offenes Wohngefühl. Die Wohnung ist mit einer kontrollierten Wohnraumlüftung (KWL) mit bodenbündigen Luftauslässen ausgestattet, die für stetig frische und wohltemperierte Luft sorgt. Durch die dezent im Boden integrierten Auslässe bleibt die ebene Bodenfläche erhalten, während Energieeffizienz und Wohnkomfort auf höchstem Niveau gewährleistet sind. So vereint das Haus ökologische Bauweise mit modernem Wohnkomfort und bietet ein Wohnambiente, das nachhaltig und zukunftssicher ist.
Die Erdgeschosswohnung ist komfortabel und ohne Stufen über eine eigene Haustür erreichbar. Im Eingangsbereich befindet sich unmittelbar auf der linken Seite der Hausanschluss-/Abstellraum, der ausreichend Platz für Ihre Waschmaschine, Trockner, den Sicherungskasten und die kontrollierte Wohnraumlüftung bietet. Vom Flur gelangen Sie geradeaus in das großzügige, lichtdurchflutete Wohn- und Esszimmer mit offenem Wohnküchenbereich. Zwei Terrassentüren eröffnen den Zugang zur überdachten Terrasse und in den kleinen Garten – ideal für entspannte Stunden im Freien.
Auf der rechten Seite des Flurs liegen ein großzügiges Schlafzimmer mit doppelflügigen Fenstern und ein weiteres Zimmer, das flexibel als Kinder-, Gäste- oder Arbeitszimmer genutzt werden kann. Ein modern ausgestattetes Badezimmer mit bodentiefer Dusche rundet die Wohnung ab.
Diese attraktive Wohnung kombiniert offenes Wohnen, durchdachte Raumaufteilung und moderne Technik – perfekt für Paare oder alleinstehende Personen, die Wert auf komfortables, energieeffizientes und hochwertiges Wohnen legen.
Gerne stellen wir Ihnen diese attraktive Neubauwohnung bei einer Besichtigung näher vor. Wir freuen uns auf Ihre Anfrage.Ausstattung der ImmobilieAusstattungsdetails:
- Moderne Heiz- und Lüftungstechnik: Die Wohnung verfügt über eine Fußbodenheizung in allen Wohnräumen und eine kontrollierte Wohnraumlüftung (KWL) mit bodenbündigen Luftauslässen, die für stets frische, gefilterte Luft mit Wärmerückgewinnung sorgt und das Raumklima auf einem hohen Komfortniveau hält.
Für höchsten Wohnkomfort ist die Wohnung vollklimatisiert und mit separaten Klimasplit-Anlagen in allen Räumen ausgestattet.
- Hervorragende Energieeffizienz: Das Haus entspricht nahezu den Kriterien eines Passivhauses, mit exzellenter Wärmedämmung, optimierter Gebäudehülle und dreifachverglasten Fenstern, die sowohl Heizkosten minimieren als auch das Wohnklima verbessern. Die Fenster sind mit Einbruchschutz der Widerstandsklasse RC2N ausgestattet und bieten ein erhöhtes Maß an Sicherheit.
- Küche: Die Wohnung wird mit einer modernen Einbauküche ausgestattet, die zeitgemäßen Komfort und Funktionalität bietet. Der Preis für die Küche beträgt 165,- €/Monat. (Siehe Aufstellung bei Sonstigen Angaben).
- Badezimmer: Das Badezimmer überzeugt durch ein elegantes, modernes Design und eine hochwertige Ausstattung. Die großzügige, bodengleiche Dusche schafft ein offenes Raumgefühl und hohen Komfort. Edle weiße Sanitärobjekte, ein formschöner Waschtisch sowie stilvolle Armaturen in Chrom unterstreichen den exklusiven Charakter. Das WC ist spülrandlos ausgeführt und mit komfortabler Absenkautomatik ausgestattet – für hohe Hygiene und leisen Bedienkomfort. Die hochwertige Regendusche mit weichem „PowderRain“ und zusätzlicher Handbrause sorgt für ein luxuriöses Duscherlebnis.
- Terrasse / Außenbereich: Die Wohnung verfügt über eine überdachte Terrasse, die sich vom Wohn-/Essbereich aus betreten lässt, sowie ein Stück Garten, was zusätzlichen Wohnkomfort im Freien bietet.
- Digitale Infrastruktur: Die Wohnung verfügt über einen Glasfaseranschluss, sodass schnelles Internet für Homeoffice, Streaming oder Gaming garantiert ist. In sämtlichen Räumen sind LAN-Anschlüsse vorhanden, im Wohnbereich sogar doppelt ausgeführt.
- Parkmöglichkeiten: Als Mieter stehen Ihnen sowohl eine Garage, welche über ein elektrisches Sektionaltor verfügt und mit einer 11 KW-Wallbox ausgestattet ist, als auch der Stellplatz vor der Garage zur Verfügung. Die Garage wird mit 65,00 €/Monat berechnet. (Siehe Aufstellung bei Sonstigen Angaben)
- Ergänzt wird das Wohnangebot durch die 15 m² große, überdachte Terrasse sowie einen Garten mit ca. 150 m² Fläche, der zusätzlichen Wohn- und Erholungsraum im Freien bietet.Hier befindet sich die ImmobilieDie angebotene Wohnung befindet sich in Wegberg-Harbeck (Innenring), einem idyllischen und gepflegten Ortsteil der Stadt Wegberg im Kreis Heinsberg. Die Lage vereint auf gelungene Weise naturnahes Wohnen, ein ruhiges Wohnumfeld und eine sehr gute regionale Erreichbarkeit.
Wegberg-Harbeck ist von viel Grün und einer angenehmen, gemeinschaftlichen Atmosphäre geprägt. Hier wohnen Sie in ruhiger Umgebung, fernab von Hektik und Verkehr, ohne auf die Vorzüge einer gut ausgebauten Infrastruktur verzichten zu müssen. Die Innenstadt von Wegberg ist in wenigen Minuten erreichbar und bietet sämtliche Einrichtungen des täglichen Bedarfs, darunter Einkaufsmöglichkeiten, Schulen, Kindergärten, medizinische Versorgung sowie gastronomische Angebote.
Die verkehrstechnische Anbindung ist optimal: Über die nahegelegenen Bundesstraßen und Autobahnanschlüsse (A52 / A46) sind die Städte Mönchengladbach, Düsseldorf und Aachen komfortabel erreichbar. Der Bahnhof Wegberg gewährleistet zudem eine regelmäßige Anbindung an den regionalen Schienenverkehr.
Ein besonderes Qualitätsmerkmal dieser Lage ist die unmittelbare Nähe zur Natur. Der angrenzende Naturpark Maas-Schwalm-Nette sowie zahlreiche Rad- und Wanderwege laden zu Freizeitaktivitäten und Erholung im Grünen ein. Diese Kombination aus hoher Wohnqualität und naturnahem Umfeld macht Harbeck zu einem gefragten Wohnstandort.
Insgesamt überzeugt die Lage durch eine harmonische Verbindung von Ruhe, Natur und urbaner Erreichbarkeit – ideal für Mieter mit Anspruch an Lebensqualität, Komfort und Wohnwert.Sonstige Angaben zur ImmobilieSchauen Sie sich bitte vorab die 360° Besichtigung genau an, ob die Wohnung für Sie in Frage kommt. Hier können Sie sich einen ersten Eindruck verschaffen.
Nachfolgend der Link zum virtuellen Rundgang:
https://tour.ogulo.com/xfAo
Als Mieter wird ein Paar oder eine alleinstehende Person mit einem geregelten Gehalt/Einkommen gesucht!
Bitte haben Sie Verständnis dafür, dass wir im Laufe der Mietvertrags-Anbahnung einige Daten z.B. eine freiwillige Selbstauskunft/Schufa-Auskunft, Gehalts-Einkommensnachweise von Ihnen benötige.
Die Wohnung ist ab dem 01. April 2026 bezugsbereit.
Die Flächen setzten sich wie folgt zusammen:
78 m² Wohnfläche setzen sich zusammen aus:
70,5 m² Wohnen + 15 m² überdachte Terrasse davon werden 7,5 m² als Wohnfläche angerechnet
ca.150 m² Garten zur alleinigen Nutzung.
Die Mietkosten setzen sich wie folgt zusammen:
= 1.190, - € Kaltmiete : 78 m² Wohnfläche = 15,26 €/m²
+ 165, - € hochwertige Einbauküche
+ 65, - € Garage und Stellplatz
= 1.420 ,- € Mietkosten inkl. Einbauküche und Garage
+ 249, - € Nebenkosten inkl. 42, - € Heizkosten.
= 1.669, - € Warmmiete
Die Miet-Kaution beträgt 4.065, - €.
Bei weiteren Fragen stehen wir Ihnen gerne zur Verfügung.
Ihre Ansprechpartnerin ist:
Sarah Wilms
Telefon: 02434-9933004