Diese hochwertige Maisonettewohnung befindet sich der Fertigstellung eines neuerbauten Zweifamilienhaus der renommierten Fertigbau-Firma "FingerHaus" und besticht durch seine zukunftsweisende Bauweise in fast Passivhaus-Qualität. Das bedeutet: minimaler Heizenergiebedarf, exzellente Wärmedämmung und eine optimierte Gebäudehülle – für geringe Nebenkosten und ein besonders behagliches Raumklima in allen Jahreszeiten.
Große, dreifachverglaste Fensterflächen sorgen für viel Tageslicht und ein offenes Wohngefühl. Die Wohnung ist mit einer kontrollierten Wohnraumlüftung (KWL) mit bodenbündigen Luftauslässen ausgestattet, die für stetig frische und wohltemperierte Luft sorgt. Durch die dezent im Boden integrierten Auslässe bleibt die ebene Bodenfläche erhalten, während Energieeffizienz und Wohnkomfort auf höchstem Niveau gewährleistet sind. So vereint das Haus ökologische Bauweise mit modernem Wohnkomfort und bietet ein Wohnambiente, das nachhaltig und zukunftssicher ist.
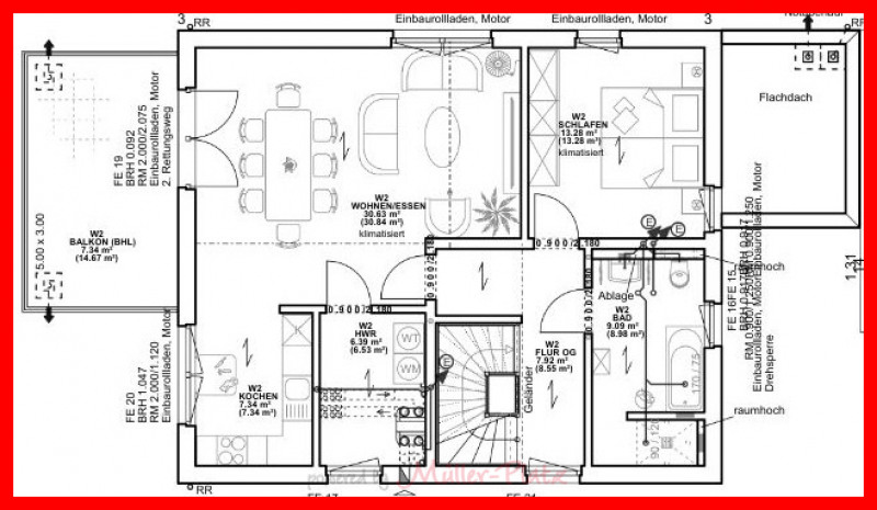
Die Wohnung erstreckt sich über zwei Etagen und verfügt über einen eigenen Hauseingang. Vom Eingangsbereich aus führt eine Treppe in den Flur des 1. Obergeschosses. Von hier aus gelangen Sie geradeaus in das Badezimmer und auf der linken Seite in das erste, lichtdurchflutete Schlafzimmer mit zwei Fenstern. Weiter entlang des Flurs öffnet sich das großzügige Wohn- und Esszimmer, das in die offene Wohnküche übergeht. Von hier aus gelangen Sie über eine Terrassentür auf den Balkon, der zusätzlichen Komfort im Freien bietet. Ein separater Raum neben der Küche beherbergt den Hausanschlussraum mit ausreichend Platz für Waschmaschine, Trockner sowie den Sicherungskasten und die kontrollierte Wohnraumlüftung.
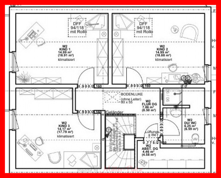
Über eine weitere Treppe im Flur gelangen Sie in das Dachgeschoss, das durch seine helle und großzügige Raumgestaltung besticht. Gleich rechts oben befindet sich ein kleiner Abstellraum, der zusätzlichen Stauraum bietet. Geradeaus liegt das zweite Badezimmer, das mit einem bodentiefen Fenster für viel Tageslicht sorgt. Auf der linken Seite des Flurs befinden sich drei geräumige Schlafzimmer, von denen zwei jeweils über ein zusätzliches Dachflächenfenster verfügen; alle Zimmer sind mit bodentiefen Fenstern ausgestattet und wirken besonders hell und freundlich. Die Kombination aus großen Fensterflächen lässt die Zimmer besonders hell und freundlich wirken. Die Zimmer bieten Ihnen ausreichend Platz für die flexible Nutzung als Schlaf-, Kinder- oder Arbeitszimmer.
Diese attraktive Wohnung kombiniert offenes Wohnen, durchdachte Raumaufteilung und moderne Technik – ideal für Paare oder eine Familie, die Wert auf komfortables, energieeffizientes und hochwertiges Wohnen legen.
Gerne stellen wir Ihnen diese attraktive Neubauwohnung bei einer Besichtigung näher vor. Wir freuen uns auf Ihre Anfrage.
Ausstattungsdetails:
- Moderne Heiz- und Lüftungstechnik: Die Wohnung verfügt über eine Fußbodenheizung in allen Wohnräumen und eine kontrollierte Wohnraumlüftung (KWL) mit bodenbündigen Luftauslässen, die für stets frische, gefilterte Luft sorgt und das Raumklima auf einem hohen Komfortniveau hält.
Für höchsten Wohnkomfort ist die Wohnung vollklimatisiert und mit separaten Klimasplit-Anlagen in allen Räumen ausgestattet.
- Hervorragende Energieeffizienz: Das Haus entspricht nahezu den Kriterien eines Passivhauses, mit exzellenter Wärmedämmung, optimierter Gebäudehülle und dreifachverglasten Fenstern, die sowohl Heizkosten minimieren als auch das Wohnklima verbessern. Die Fenster sind mit Einbruchschutz der Widerstandsklasse RC2N ausgestattet und bieten ein erhöhtes Maß an Sicherheit.
- Küche: Die Wohnung wird mit einer modernen Einbauküche ausgestattet, die zeitgemäßen Komfort und Funktionalität bietet. Der Preis für die Küche beträgt 171,- €/Monat. (Siehe Aufstellung bei Sonstigen Angaben)
- Badezimmer: Beide Badezimmer überzeugen durch ein elegantes, modernes Design und eine hochwertige Ausstattung. Großzügige, bodengleiche Duschen schaffen ein offenes Raumgefühl und höchsten Komfort. Edle weiße Sanitärobjekte, formschöne Waschtische sowie stilvolle Armaturen in Chrom unterstreichen den exklusiven Charakter. Die WCs sind spülrandlos ausgeführt und mit komfortabler Absenkautomatik ausgestattet – für höchste Hygiene und leisen Bedienkomfort. Ein besonderes Highlight bildet die elegante Badewanne mit sanft geschwungener Formgebung, die dem Bad einen exklusiven Designakzent verleiht und zum Entspannen einlädt. Hochwertige Regenduschen mit weichem „PowderRain“ und zusätzlicher Handbrause sorgen für ein luxuriöses Duscherlebnis.
- Bodenbeläge: Die Schlafräume, Flure sowie das Wohn- und Esszimmer sind mit einem Laminat in Holzoptik, abgestimmt auf die Echtholztreppe, versehen. Der Eingangsbereich, die Küche, der Hauswirtschaftsraum und die Bäder sind mit hellen Feinsteinzeug-Fliesen (60 × 60 cm) in Sandsteinoptik ausgestattet. Die Bäder verfügen zudem über abgestimmte Wandfliesen, wodurch ein modernes und einheitliches Raumkonzept entsteht.
- Balkon / Außenbereich: Die Wohnung verfügt über einen überdachten Balkon, der sich vom Wohn-/Essbereich aus betreten lässt und zusätzlichen Wohnkomfort im Freien bietet.
- Digitale Infrastruktur: Die Wohnung verfügt über einen Glasfaseranschluss, sodass schnelles Internet für Homeoffice, Streaming oder Gaming garantiert ist. In sämtlichen Räumen sind LAN-Anschlüsse vorhanden, im Wohnbereich sogar doppelt ausgeführt.
- Parkmöglichkeiten: Als Mieter stehen Ihnen sowohl eine Garage, welche über ein elektrisches Sektionaltor verfügt und mit einer 11 KW-Wallbox ausgestattet ist, als auch der Stellplatz vor der Garage zur Verfügung. Die Garage wird mit 65,00 €/Monat berechnet.
(Siehe Aufstellung bei Sonstigen Angaben)
Die angebotene Wohnung befindet sich in Wegberg-Harbeck (Innenring), einem idyllischen und gepflegten Ortsteil der Stadt Wegberg im Kreis Heinsberg. Die Lage vereint auf gelungene Weise naturnahes Wohnen, ein ruhiges Wohnumfeld und eine sehr gute regionale Erreichbarkeit.
Wegberg-Harbeck ist von viel Grün und einer angenehmen, gemeinschaftlichen Atmosphäre geprägt. Hier wohnen Sie in ruhiger Umgebung, fernab von Hektik und Verkehr, ohne auf die Vorzüge einer gut ausgebauten Infrastruktur verzichten zu müssen. Die Innenstadt von Wegberg ist in wenigen Minuten erreichbar und bietet sämtliche Einrichtungen des täglichen Bedarfs, darunter Einkaufsmöglichkeiten, Schulen, Kindergärten, medizinische Versorgung sowie gastronomische Angebote.
Die verkehrstechnische Anbindung ist optimal: Über die nahegelegenen Bundesstraßen und Autobahnanschlüsse (A52 / A46) sind die Städte Mönchengladbach, Düsseldorf und Aachen komfortabel erreichbar. Der Bahnhof Wegberg gewährleistet zudem eine regelmäßige Anbindung an den regionalen Schienenverkehr.
Ein besonderes Qualitätsmerkmal dieser Lage ist die unmittelbare Nähe zur Natur. Der angrenzende Naturpark Maas-Schwalm-Nette sowie zahlreiche Rad- und Wanderwege laden zu Freizeitaktivitäten und Erholung im Grünen ein. Diese Kombination aus hoher Wohnqualität und naturnahem Umfeld macht Harbeck zu einem gefragten Wohnstandort.
Insgesamt überzeugt die Lage durch eine harmonische Verbindung von Ruhe, Natur und urbaner Erreichbarkeit – ideal für Mieter mit Anspruch an Lebensqualität, Komfort und Wohnwert.
Schauen Sie sich bitte vorab die 360° Besichtigung genau an, ob die Wohnung für Sie in Frage kommt. Hier können Sie sich einen ersten Eindruck verschaffen.
Nachfolgend der Link zum virtuellen Rundgang:
https://tour.ogulo.com/shfo
Als Mieter wird ein Paar oder eine Familie mit einem geregelten Gehalt/Einkommen gesucht!
Bitte haben Sie Verständnis dafür, dass ich im Laufe der Mietvertrags-Anbahnung einige Daten z.B. eine freiwillige Selbstauskunft/Schufa-Auskunft, Gehalts-Einkommensnachweise von Ihnen benötige.
Die Wohnung ist ab dem 01. April 2026 bezugsbereit.
Die Flächen setzten sich wie folgt zusammen:
140,14 m² Wohnfläche setzen sich zusammen aus:
132,64 m² Wohnen + 15 m² Balkon, davon 7,5 m² anrechenbare Wohnfläche
Die Mietkosten setzen sich wie folgt zusammen:
= 1.944, - € Kaltmiete : 140,14 m² Wohnfläche = 13,87 €/m²
+ 171, - € hochwertige Einbauküche
+ 65, - € Garage und Stellplatz
= 2.180,- € Mietkosten inkl. Einbauküche und Garage
+ 390 € Nebenkosten inkl. 79, - € Heizkosten
= 2.570, - € Warmmiete
Die Miet-Kaution beträgt 6.345, - €.
Bei weiteren Fragen stehen wir Ihnen gerne zur Verfügung.
Ihre Ansprechpartnerin ist:
Sarah Wilms
Telefon: 02434-9933004
Kaltmiete
1.944 €
Nebenkosten
390 €
Warmmiete
2.399 €
Heizkosten
79 €
Währung
€
Kaution
6.345 €
Baujahr
2026
Zustand
Erstbezug
Energieausweis
Bedarfsausweis
Energieausweis gültig bis
08.01.2036
Endenergiebedarf
9,7 kWh/(m²a)
Heizungsbaujahr lt. Energieausweis
2026
wesentlicher Energieträger
Luft/Wasser Wärmepumpe
Details zur Immobilie
Energieausweisdaten
Baujahr
2026
Zustand
Erstbezug
Energieausweis
Bedarfsausweis
Energieausweis gültig bis
08.01.2036
Endenergiebedarf
9,7 kWh/(m²a)
Heizungsbaujahr lt. Energieausweis
2026
wesentlicher Energieträger
Luft/Wasser Wärmepumpe
Kaltmiete
1.944 €
Nebenkosten
390 €
Warmmiete
2.399 €
Heizkosten
79 €
Währung
€
Kaution
6.345 €
Sonstige Angaben zur ImmobilieDiese hochwertige Maisonettewohnung befindet sich der Fertigstellung eines neuerbauten Zweifamilienhaus der renommierten Fertigbau-Firma "FingerHaus" und besticht durch seine zukunftsweisende Bauweise in fast Passivhaus-Qualität. Das bedeutet: minimaler Heizenergiebedarf, exzellente Wärmedämmung und eine optimierte Gebäudehülle – für geringe Nebenkosten und ein besonders behagliches Raumklima in allen Jahreszeiten.
Große, dreifachverglaste Fensterflächen sorgen für viel Tageslicht und ein offenes Wohngefühl. Die Wohnung ist mit einer kontrollierten Wohnraumlüftung (KWL) mit bodenbündigen Luftauslässen ausgestattet, die für stetig frische und wohltemperierte Luft sorgt. Durch die dezent im Boden integrierten Auslässe bleibt die ebene Bodenfläche erhalten, während Energieeffizienz und Wohnkomfort auf höchstem Niveau gewährleistet sind. So vereint das Haus ökologische Bauweise mit modernem Wohnkomfort und bietet ein Wohnambiente, das nachhaltig und zukunftssicher ist.
Die Wohnung erstreckt sich über zwei Etagen und verfügt über einen eigenen Hauseingang. Vom Eingangsbereich aus führt eine Treppe in den Flur des 1. Obergeschosses. Von hier aus gelangen Sie geradeaus in das Badezimmer und auf der linken Seite in das erste, lichtdurchflutete Schlafzimmer mit zwei Fenstern. Weiter entlang des Flurs öffnet sich das großzügige Wohn- und Esszimmer, das in die offene Wohnküche übergeht. Von hier aus gelangen Sie über eine Terrassentür auf den Balkon, der zusätzlichen Komfort im Freien bietet. Ein separater Raum neben der Küche beherbergt den Hausanschlussraum mit ausreichend Platz für Waschmaschine, Trockner sowie den Sicherungskasten und die kontrollierte Wohnraumlüftung.
Über eine weitere Treppe im Flur gelangen Sie in das Dachgeschoss, das durch seine helle und großzügige Raumgestaltung besticht. Gleich rechts oben befindet sich ein kleiner Abstellraum, der zusätzlichen Stauraum bietet. Geradeaus liegt das zweite Badezimmer, das mit einem bodentiefen Fenster für viel Tageslicht sorgt. Auf der linken Seite des Flurs befinden sich drei geräumige Schlafzimmer, von denen zwei jeweils über ein zusätzliches Dachflächenfenster verfügen; alle Zimmer sind mit bodentiefen Fenstern ausgestattet und wirken besonders hell und freundlich. Die Kombination aus großen Fensterflächen lässt die Zimmer besonders hell und freundlich wirken. Die Zimmer bieten Ihnen ausreichend Platz für die flexible Nutzung als Schlaf-, Kinder- oder Arbeitszimmer.
Diese attraktive Wohnung kombiniert offenes Wohnen, durchdachte Raumaufteilung und moderne Technik – ideal für Paare oder eine Familie, die Wert auf komfortables, energieeffizientes und hochwertiges Wohnen legen.
Gerne stellen wir Ihnen diese attraktive Neubauwohnung bei einer Besichtigung näher vor. Wir freuen uns auf Ihre Anfrage.Ausstattung der ImmobilieAusstattungsdetails:
- Moderne Heiz- und Lüftungstechnik: Die Wohnung verfügt über eine Fußbodenheizung in allen Wohnräumen und eine kontrollierte Wohnraumlüftung (KWL) mit bodenbündigen Luftauslässen, die für stets frische, gefilterte Luft sorgt und das Raumklima auf einem hohen Komfortniveau hält.
Für höchsten Wohnkomfort ist die Wohnung vollklimatisiert und mit separaten Klimasplit-Anlagen in allen Räumen ausgestattet.
- Hervorragende Energieeffizienz: Das Haus entspricht nahezu den Kriterien eines Passivhauses, mit exzellenter Wärmedämmung, optimierter Gebäudehülle und dreifachverglasten Fenstern, die sowohl Heizkosten minimieren als auch das Wohnklima verbessern. Die Fenster sind mit Einbruchschutz der Widerstandsklasse RC2N ausgestattet und bieten ein erhöhtes Maß an Sicherheit.
- Küche: Die Wohnung wird mit einer modernen Einbauküche ausgestattet, die zeitgemäßen Komfort und Funktionalität bietet. Der Preis für die Küche beträgt 171,- €/Monat. (Siehe Aufstellung bei Sonstigen Angaben)
- Badezimmer: Beide Badezimmer überzeugen durch ein elegantes, modernes Design und eine hochwertige Ausstattung. Großzügige, bodengleiche Duschen schaffen ein offenes Raumgefühl und höchsten Komfort. Edle weiße Sanitärobjekte, formschöne Waschtische sowie stilvolle Armaturen in Chrom unterstreichen den exklusiven Charakter. Die WCs sind spülrandlos ausgeführt und mit komfortabler Absenkautomatik ausgestattet – für höchste Hygiene und leisen Bedienkomfort. Ein besonderes Highlight bildet die elegante Badewanne mit sanft geschwungener Formgebung, die dem Bad einen exklusiven Designakzent verleiht und zum Entspannen einlädt. Hochwertige Regenduschen mit weichem „PowderRain“ und zusätzlicher Handbrause sorgen für ein luxuriöses Duscherlebnis.
- Bodenbeläge: Die Schlafräume, Flure sowie das Wohn- und Esszimmer sind mit einem Laminat in Holzoptik, abgestimmt auf die Echtholztreppe, versehen. Der Eingangsbereich, die Küche, der Hauswirtschaftsraum und die Bäder sind mit hellen Feinsteinzeug-Fliesen (60 × 60 cm) in Sandsteinoptik ausgestattet. Die Bäder verfügen zudem über abgestimmte Wandfliesen, wodurch ein modernes und einheitliches Raumkonzept entsteht.
- Balkon / Außenbereich: Die Wohnung verfügt über einen überdachten Balkon, der sich vom Wohn-/Essbereich aus betreten lässt und zusätzlichen Wohnkomfort im Freien bietet.
- Digitale Infrastruktur: Die Wohnung verfügt über einen Glasfaseranschluss, sodass schnelles Internet für Homeoffice, Streaming oder Gaming garantiert ist. In sämtlichen Räumen sind LAN-Anschlüsse vorhanden, im Wohnbereich sogar doppelt ausgeführt.
- Parkmöglichkeiten: Als Mieter stehen Ihnen sowohl eine Garage, welche über ein elektrisches Sektionaltor verfügt und mit einer 11 KW-Wallbox ausgestattet ist, als auch der Stellplatz vor der Garage zur Verfügung. Die Garage wird mit 65,00 €/Monat berechnet.
(Siehe Aufstellung bei Sonstigen Angaben)Hier befindet sich die ImmobilieDie angebotene Wohnung befindet sich in Wegberg-Harbeck (Innenring), einem idyllischen und gepflegten Ortsteil der Stadt Wegberg im Kreis Heinsberg. Die Lage vereint auf gelungene Weise naturnahes Wohnen, ein ruhiges Wohnumfeld und eine sehr gute regionale Erreichbarkeit.
Wegberg-Harbeck ist von viel Grün und einer angenehmen, gemeinschaftlichen Atmosphäre geprägt. Hier wohnen Sie in ruhiger Umgebung, fernab von Hektik und Verkehr, ohne auf die Vorzüge einer gut ausgebauten Infrastruktur verzichten zu müssen. Die Innenstadt von Wegberg ist in wenigen Minuten erreichbar und bietet sämtliche Einrichtungen des täglichen Bedarfs, darunter Einkaufsmöglichkeiten, Schulen, Kindergärten, medizinische Versorgung sowie gastronomische Angebote.
Die verkehrstechnische Anbindung ist optimal: Über die nahegelegenen Bundesstraßen und Autobahnanschlüsse (A52 / A46) sind die Städte Mönchengladbach, Düsseldorf und Aachen komfortabel erreichbar. Der Bahnhof Wegberg gewährleistet zudem eine regelmäßige Anbindung an den regionalen Schienenverkehr.
Ein besonderes Qualitätsmerkmal dieser Lage ist die unmittelbare Nähe zur Natur. Der angrenzende Naturpark Maas-Schwalm-Nette sowie zahlreiche Rad- und Wanderwege laden zu Freizeitaktivitäten und Erholung im Grünen ein. Diese Kombination aus hoher Wohnqualität und naturnahem Umfeld macht Harbeck zu einem gefragten Wohnstandort.
Insgesamt überzeugt die Lage durch eine harmonische Verbindung von Ruhe, Natur und urbaner Erreichbarkeit – ideal für Mieter mit Anspruch an Lebensqualität, Komfort und Wohnwert.Sonstige Angaben zur ImmobilieSchauen Sie sich bitte vorab die 360° Besichtigung genau an, ob die Wohnung für Sie in Frage kommt. Hier können Sie sich einen ersten Eindruck verschaffen.
Nachfolgend der Link zum virtuellen Rundgang:
https://tour.ogulo.com/shfo
Als Mieter wird ein Paar oder eine Familie mit einem geregelten Gehalt/Einkommen gesucht!
Bitte haben Sie Verständnis dafür, dass ich im Laufe der Mietvertrags-Anbahnung einige Daten z.B. eine freiwillige Selbstauskunft/Schufa-Auskunft, Gehalts-Einkommensnachweise von Ihnen benötige.
Die Wohnung ist ab dem 01. April 2026 bezugsbereit.
Die Flächen setzten sich wie folgt zusammen:
140,14 m² Wohnfläche setzen sich zusammen aus:
132,64 m² Wohnen + 15 m² Balkon, davon 7,5 m² anrechenbare Wohnfläche
Die Mietkosten setzen sich wie folgt zusammen:
= 1.944, - € Kaltmiete : 140,14 m² Wohnfläche = 13,87 €/m²
+ 171, - € hochwertige Einbauküche
+ 65, - € Garage und Stellplatz
= 2.180,- € Mietkosten inkl. Einbauküche und Garage
+ 390 € Nebenkosten inkl. 79, - € Heizkosten
= 2.570, - € Warmmiete
Die Miet-Kaution beträgt 6.345, - €.
Bei weiteren Fragen stehen wir Ihnen gerne zur Verfügung.
Ihre Ansprechpartnerin ist:
Sarah Wilms
Telefon: 02434-9933004